Specialism
Project type
Insights
Tools

A successful planning appeal delivers a discreet second floor roof extension in a conservation area

Location

Henrietta Gardens N21

Local Authority

London Borough of Enfield

Plot Type

Conservation area

Project Type

Extension

Accomplishment

Erection of an additional storey in a conservation area to create a new master bedroom with an ensuite

Services by Urbanist Architecture

Planning Consultant, Project Architect

Collaborators

Hello Structure, Terracotta Property

Challenge

Securing planning consent for a second-storey roof extension rising above the main building to add a large bedroom and ensuite, whilst preserving the character and appearance of the conservation area following a previously dismissed appeal.

Approach

Developing a high-quality, context-sensitive design with strategic setbacks, reduced height, and simplified massing to minimise visual impact whilst demonstrating how the proposal would enhance rather than detract from the surrounding streetscape.

Solution

Successfully overturning the initial planning refusal through a rigorous appeal process, securing planning permission for a sensitively designed roof extension that significantly improves the home's functionality whilst remaining fully respectful of the conservation area's historic character and contributing positively to the local streetscape.

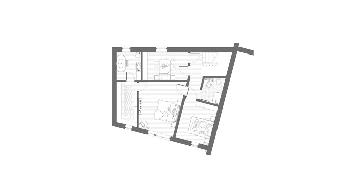
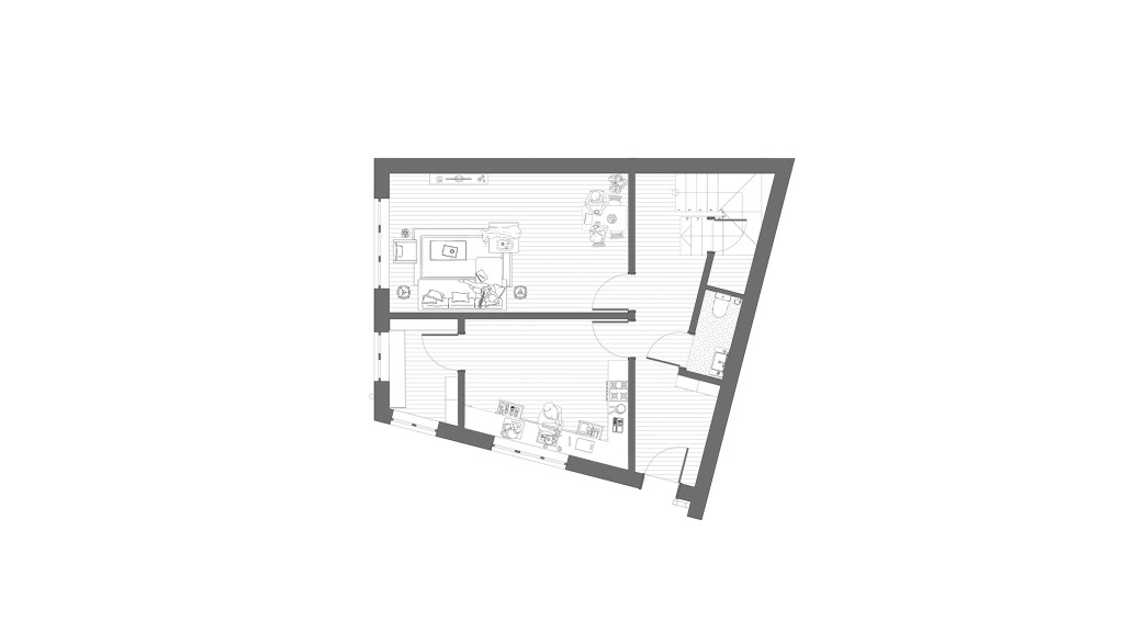
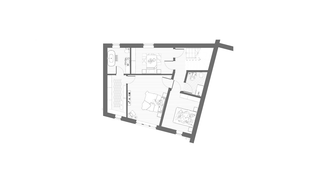
Before & After

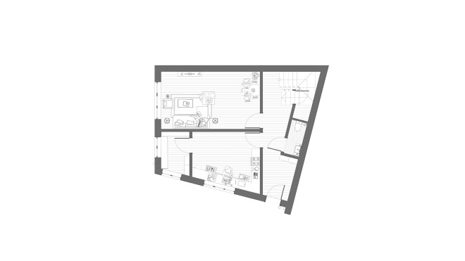
Existing ground floor plan of the Henrietta Gardens N21 property in the London Borough of Enfield conservation area, showing the layout prior to the second-floor roof extension designed by Urbanist Architecture.
Location

Henrietta Gardens N21

Local Authority

London Borough of Enfield

Plot Type

Conservation area

Project Type

Extension

Accomplishment

Erection of an additional storey in a conservation area to create a new master bedroom with an ensuite

Services by Urbanist Architecture

Planning Consultant, Project Architect

Collaborators

Hello Structure, Terracotta Property

Related projects

Explore our portfolio of similar projects

Ready to unlock the potential of your project?

We specialise in crafting creative design and planning strategies to unlock the hidden potential of developments, secure planning permission and deliver imaginative projects on tricky sites

Write us a message
Decorative image of an architect working